Historic Sites of Manitoba: Lord Roberts School (Daly Street South / 665 Beresford Avenue, Winnipeg)

Link to:
Principals | Vice-Principals | Teachers | Photos & Coordinates | Sources

Around the time Lord Roberts School was built, Winnipeg was booming, and was soon to be the third-largest city in Canada. It would remain so until the 1920s. The burgeoning population moved outward from the city centre, and Fort Rouge grew to house a large working- and middle-class demographic. The nearby Canadian National Railway yards and shops were employer to many of the residents. [1]

An influx of people required new services, and as there was only one four-roomed wooden schoolhouse built in 1908 to serve the neighbourhood (Riverview School), a site was purchased in early 1910 at a cost of $22,200. Lord Roberts School was erected the same year facing east on Daly Street (formerly John Street), bounded by Rathgar Avenue on the north and Beresford Avenue on the south. The cornerstone of the new school was laid by Dr. Thomas Glendenning Hamilton of the Winnipeg School Board. [2, 3, 4]

Designed by Winnipeg school architect James Bertram Mitchell, and named after highly decorated British Field Marshall, Lord Frederick Sleigh Roberts (1832-1914), the fireproof, solid grey brick, three-storey building contained 16 classrooms, two manual training rooms, a principal’s office, medical inspection room, and staff and student’s rest rooms. The school was built to accommodate 700 pupils. The total cost of its construction in 1910 came in at $90,300 and included heating, ventilation, and furniture. [3]

Lord Roberts School No. 1 opened in January 1911 with Sydney Ashton Campbell as Principal and five teachers. Enrolment was 240 pupils at that time. By 1922 there were 1,039 students, and 26 teachers. [5] Building 1 had hardwood floors that creaked when walked on. The windows were tall and let a lot of light in to a large room at the top of the stairs leading into the school. The space provided a perfect room for school assemblies. Classrooms led off of hallways at the sides of the room. A piano and potted ferns provided an air of graciousness against the dark wood framed classrooms. The science room contained stuffed birds and animals. Orange-yellow painted wooden desks with black metal grills had inkwells containing small glass holders which were filled each morning. Students used stick pens with metal nibs to practise alphabet and penmanship skills on lined foolscap paper. [15]

As the school population continued to grow, five teachers and classes were transferred to Riverview School in January 1919. The school board passed the building of another structure on the Lord Roberts grounds the same year, which eventually cost $69,500. [6]

Lord Roberts School No. 2 opened in April 1920, behind the larger school, resulting in eight classrooms and an auditorium complete with stage. The longest wing ran west along Beresford Avenue, with the Auditorium central and to the right of the main entrance. A smaller north wing with three classrooms and washroom facilities came off of and behind the Auditorium and ran behind Building 1, with playground space in between the two schools. Halls connected the wings of the one-storey building. The two buildings were known by the students as the “big” school and “little” school. In 1923, an additional two-storey, eight-classroom brick Annex was added to Building 2. That addition ran behind Building 1 and was adjoined to the north wing looking toward Rathgar. By 1929, the staff numbered 34 and enrollment was 1,438. Riverview School was again enlarged to take the overflow. [5, 6, 14, 15]

The School Board decided to introduce a new concept into the school, and in September 1920 Lord Roberts Junior High School was organized with six teachers on the first staff. By 1929, 481 students were enrolled in Junior High. Lord Roberts School had variously ended at Grade 9, then 7, and now at 6 through the years. Students attending in the earlier years typically attended Kelvin High School after elementary school. Students from 1955 on attended Churchill High School after it was built. [5, 15]

Percy Graham Padwick, a dedicated teacher conducted the Lord Roberts Orchestra which was Winnipeg’s first school orchestra, and well known in its day. Winnipeg Youth Orchestra (or Manitoba School’s Orchestra) was founded by Padwick in 1923 for young musicians of 8-18 years and the music was broadcast on Saturday mornings in 1927 as instruction for students around the province of Manitoba. In 1922 that teacher’s gifts also extended to teaching a Wednesday night gymnasium club which averaged 75 boys in attendance. [6, 7, 8, 17]

Fred Tipping, a manual training instructor held a Thursday night radio class attended by 35 boys. The boys constructed a radio and then began making sets for themselves. A May Day Festival was begun in 1920 by Miss E. Tagg. Operettas and plays were produced throughout the years, and money raised in one instance was used to purchase two gramophones and a selection of records. Miss Fern Grant directed a Lord Roberts music class who became winners of the Daniel McIntyre trophy in 1935 at the Winnipeg Music Festival. Many Lord Roberts classes sang and attended the prestigious Festival over the years. Tunics and white blouses were the dress for girls at that event, while boys wore white shirts and dark trousers. [6, 9, 15, 17]

Al Vickery, in a Winnipeg Free Press article entitled “Lord Roberts remembered”, spent from 1929 to 1931 at the school, and mentions teachers Misses McKnight, Brady, Tagg, Harris, Bell, McConnell, Moffatt, Ferrier, Grant, Miller, Kyle, the Neithercut sisters – Mary and Florence, Fred Tipping, Percy Graham Padwick, Bob Wellwood, and Johnny Menzies. [12]

Lord Roberts soccer teams became well known in Winnipeg school sports. Winter sports and then track and field events were held on the large field, along with baseball games in the warm months. One championship softball team became a powerhouse who went on to the city championship competing against the best provincial teams at Osborne Stadium in 1947. However, they wound up losing 6-4 in the finals, a loss that still bothers a former alumnus today. [15, 16]

A large contingent of over one thousand young men and women from Lord Roberts School served in the Second World War in various armed services. There were many casualties. During the war years at Lord Roberts some young boys served in the Cadet Corps. The program was Canada-wide and included young men from grades 8 to 12. They attended Wasagaming Military Training camp conducted by the Lord Strathcona Horse, and were either conscripted or went voluntarily into active duty when they reached age 18. The Corps. would take live ammunition training at Fort Osborne Barracks where they practised with 22-caliber rifles on the basement ranges. [13, 15]

At the start of the war, while the country was coming out of the Great Depression, a milk program was in place for students in order to provide nourishment which many could not otherwise afford. It carried on into the 1950s. A Kindergarten class began in 1944 for the first time at the school in Building 2, and many children attended from the 1950s to the present. At the time children spent nap-time on small cotton mats provided. Nursery classes were added in 1970. [6, 13, 15, 20]

In the early years students from the neighbourhood walked to school. The School Patrol system was in place in the 1950s, and busy streets around the school were guarded by eager young people in white leather Sam Browne belts. [15]

In 1955 Miss Frances Port directed the Lord Roberts Orchestra’s final performance when the School Board removed music instruction from the school curriculum. The concert marked Jack Scurfield’s departure as Principal to Churchill High School where he assumed responsibilities as that school’s administrative head. [11]

In the 1930s cookery was not offered at the school, but girls were taught sewing in the classroom where they made aprons, pyjamas or nighties by hand. As the school grew, female students attending Lord Roberts Grade 7 classes in 1958-1959 took Home Economics classes at Earl Grey School which had facilities for cookery and sewing instruction. In the 1930s males were taught building techniques in Shops classes at Lord Roberts in the Lower Level facilities. Among other shops teachers, Mr. Fonseca taught woodworking, and Mr. Potter taught sheet metal shops. [13, 15, 22]

Eventually use of Building 1 by many generations of students, and reports of cracks, sagging floors away from the walls, and slow sinking of the foundation, as well as a floor not testable for fear of collapse was verified by a private consultant hired by the School Board. Responding to the consultant’s 1966 report, a Board decision was made not to repair but rather replace the old buildings. A couple of years later, the Public Schools Finance Board approved plans for a new building, and it was built in 1969 in the opposite direction, west of where the old buildings stood at the end of the former playground area. The official laying of the cornerstone for the new school was 14 November 1969 by Trustee W. W. Jenkins, Chairman of the Winnipeg School Board’s Building and Policy Committee. [6, 15, 18]

The newest Lord Roberts School is located at 665 Beresford Avenue and is bounded by that street on the South and Rathgar Avenue on the North with a lane linking the two. Built at a cost of $1,300,000, the school was designed to accommodate 970 students, and is 60,100 square feet. It was officially opened on 21 May 1970. About 780 students moved during the first week of March 1970 into the new structure. Later that year, both of the old schools were demolished, and the land on which they stood forms the end of the current playing field which now ends at Daly Street. [6, 15, 19]

The present one-storey school structure, designed by architect William Isaac “Bill” Enns and completed in 1969, consists of three pre-kindergarten classrooms, 16 regular classrooms, three large-group, open area instructional spaces, one instructional materials centre (library), one multipurpose room, two gymnasiums, a therapy room, administration and related auxiliary rooms and additional basement facilities. An elevator with access to the lower level gymnasium and additional spaces was constructed later. Two colourful tile mosaics from the original school were saved, and one was placed at the front entrance of the new school along with the original limestone school name tablet which sat above the old front entrance. The other mosaic brightens the administrative office. Framed Second World War service listings are now mounted inside the front entrance. The listing is somewhat incomplete in that women who served were not always added at the time. [6, 15, 20]

Fifteen Special Needs students from the Ellen Douglass School were integrated in the Fall of 1978 after the School Board approved the proposal. At the time, two teachers accompanied students as support staff. The following year the total Ellen Douglass staff was relocated in order that there was no reduction in support services. The transition complete, the two schools are fully amalgamated. The integrated program was known as the Ellen Douglass Program, and is now called Family Advocates for Special Needs Students. Structural changes to Lord Roberts had to be made to accommodate the new students, and some washrooms were redesigned. A bus loading ramp along the north side of the school was added, and ramping of entrances and some other minor alterations were made. [10, 20, 21]

Principals

Period

Principal

1911-1943

Sydney Ashton Campbell (1876-1960)

1943-1955

Jack Milburn Scurfield (1899-1974)

1955-1956

Frederick Charles Grusz (c1896-1966)

1956-1964

Sybil Francis Shack (1911-2004)

1964-1975

Evelyn Dorothy Cox (1913-2010)

1975-1988

Ivan Biblow (1936-2008)

1988-1991

A. Grant Sorensen

1991-2002

Robert Wayne Falconer (1947-2007)

2002-2008

Joan Lloyd

2008-2014

Rosalind “Roz” Moore

2014-2016

Maria Silva

2016-?

Leslie Macgillivray

Vice-Principals

Period

Vice-Principal

1945-1950

Frederick George “Fred” Tipping (1885-1973)

1950-1952

Ronald Thornton Frederick Thompson (1907-1984)

1952-1954

Thomas George Minshull (1905-1984)

1954-1956

Cornelius Calvin Neufeld (1906-1977)

1956-1959

Madge Olwyn Stevens (1917-2008)

1959-1963

Luella Jean Sprung (c1909-1975)

1964-1967

Joseph Denis Marcel Pelletier (1922-2012)

1967-1969

A. W. Shalay

1969-1970

Ivan Biblow (1936-2008)

1970-1972

M. Jim Patterson

1973-1974

Larry W. Legrange

1974-1975

James Richard Churchill Graydon (1940-2024)

1975-1976

Al H. Nickel

1976-1977

W. Badiuk

1988

D. V. Bewell

1988

Ron D. Lowe

1992-1997

D. V. Bewell

1992-1997

Daphne M. Nordal

1997-2002

Socorro L. “Cory” Juan (1942-2024)

2002-2005

Erica Kreis

2005-2008

Sheila Spooner

2008-2010

Tony Marchione

2010-2015

Jeanette Tourangeau

2015-?

Shane Lewis Fox (c1972-2022)

Teachers

School Year

Teachers

1911-1912

Miss H. G. Bradley, Miss Lillian Delaware, Miss Dudley, Miss Dora Eldon, Miss Sara Henderson, Miss H. E. Higgins, Jessie L. Ireland, Lela H. McKnight

1912-1913

Mrs. Adair, Miss Lillian Delaware, , Miss Eva Duddles, Miss Dora Eldon, Miss Lillian Henderson, Jessie L. Ireland, Miss Eva Tagg, Miss Sara Henderson, Miss A. McKnight, Lela H. McKnight

1913-1914

Mrs. Adair, Miss Lillian Delaware, Miss Dora Eldon, Miss L. Henders, Jessie L. Ireland, Miss A. McKnight, Lela H. McKnight, Miss C. Mills, Miss A. Scarth, Miss E. Tagg

1914-1915

Mrs. Adair, Sadie Edith Gowan, Miss Mary J. Gray, Jessie L. Ireland, Mrs. A. Jackson, Miss A. McKnight, Lela H. McKnight, Miss C. Mills, Miss Irene Nelson, Miss E. Tagg, Miss S. Willoughby

1915-1916

Mrs. M. Adair, M. H. Dickson, Sadie Edith Gowan, F. Grant, Miss Mary J. Gray, Morag Harpley, Jessie L. Ireland, A. S. Jackson, A. McKnight, Lela H. McKnight, Miss C. Mills, I. Nelson, E. Tagg, S. Willoughby

1916-1917

H. H. Dickson, M. Duff, Sadie Edith Gowan, F. Grant, J. Gray, A. S. Jackson, Lela H. McKnight, G. Mills, C. Moffatt, I. Nelson, E. Tagg, S. F. Willoughby, W. A. Wilson

1917-1918

E. L. Craig, M. H. Dickson, Sadie Edith Gowan, F. Grant, A. S. Jackson, Lela H. McKnight, M. Montgomery, I. Nelson, Ruth Parker, E. A. Riley, N. Smith, E. Tagg, S. Willoughby, M. A. Wilson

1918-1919

E. L. Craig, M. H. Dickson, E. Doner, Sadie Edith Gowan, L. Garwood, F. Grant, A. S. Jackson, Lela H. McKnight, I. T. Nelson, E. Tagg, S. Willoughby, J. Woodman, Miss Sadie E. Gowan, F. A. McNair, N. E. Smith, N. J. Vick, A. E. Weldon, R. Willoughby

1919-1920

R. Cross, M. H. Dickson, F. Grant, Sadie Edith Gowan, R. Harris, A. S. Jackson, R. McConnell, Lela H. McKnight, I. S. Nelson, H. Oliver, N. E. Smith, E. Tagg, F. Thornton, R. Willoughby, H. Willson

1920-1921

Mary Bell (grade 1), Ruth I. Cross (grade 4), Mary H. Dickson (grade 3), Helen G. Douglas (grade 1), Lillian May Downing (grade 3), Clara May Dunsfield (grades 4-5), Sadie Edith Gowan (grades 5-6), Fern Grant (grades 2-3), Gertrude Higgins (grade 5), Annie S. Jackson (grade 1), Ruth McConnell (grade 7), Lela Helen McKnight (grade 9 Arts & Commercial), Catherine Moffatt (grade 8), Florence Neithercut (grade 4), Irene Nelson (grades 1-2), Percy Graham Padwick (grade 8), Nesta E. Smith (grade 2), Ethel Tagg (grade 9), Frances Thornton (grade 2), Myrtle May Wark (grade 7), Ruth E. Willoughby (grade 6)

1921-1922

H. M. Anderson, M. S. Bell, M. H. Dickson, L. Downing, E. Gibson, F. Grant, L. Hargreaves, M. Harrison, A. S. Jackson, A. McCallum, R. McConnell, R. McDonnell, Lela H. McKnight, C. Moffatt, Florence Neithercut, L. S. Nelson, Percy Graham Padwick, Emma Irene Steen, E. Tagg, F. Thornton, Fred G. Tipping, J. Weatherhead

1922-1923

M. S. Bell, E. Brady, M. H. Dickson, L. Downing, E. Gibson, F. Grant, M. H. Harrison, A. S. Jackson, A. A. Jones, W. McCallum, R. McConnell, R. McDonnell, Lela H. McKnight, C. Moffatt, Florence Neithercut, Roberta Mary Neithercut, I. S. Nelson, Percy Graham Padwick, Emma Irene Steen, E. Tagg, F. Thornton, J. R. Weatherhead

1923-1924

M. S. Bell, E. Brady, I. Davidson, M. H. Dickson, J. Ferrier, E. Gibson, F. Grant, M. Harrison, A. S. Jackson, M. Jeffs, A. A. Jones, R. McConnell, R. McDonnell, E. McGregor, Lela H. McKnight, C. Moffatt, M. E. Mundle, Roberta Mary Neithercut, I. S. Nelson, Emma Irene Steen, F. Thornton, Fred G. Tipping, J. R. Weatherhead

1924-1925

M. S. Bell, W. Boddie, E. Brady, M. H. Dickson, L. Downing, J. I. Ferrier, E. Gibson, F. Grant, M. Harrison, Jessie L. Ireland, A. S. Jackson, R. McConnell, R. McDonnell, F. McGregor, Lela H. McKnight, B. Miller, C. Moffatt, M. E. Mundle, Florence Neithercut, Roberta Mary Neithercut, I. S. Nelson P. G. Padwick, E. Tagg, F. Thornton, Fred G. Tipping, J. R. Weatherhead

1925-1926

Elementary Department: M. H. Dickson, L. M. Downing, E. Gibson, A. Graham, F. Grant, M. Harrison, Jessie L. Ireland, A. S. Jackson, R. McDonald, E. McGregor, M. E. Mundle, Florence Neithercut, Roberta Mary Neithercut, I. S. Nelson, F. Thornton, Fred G. Tipping, J. R. Weatherhead

Intermediate Department: M. S. Bell, E. Brady, I. Davidson, J. I. Ferrier, R. McConnell, Lela H. McKnight, B. Miller, C. Moffat, P. G. Padwick, E. Tagg

1926-1927

Elementary Department: M. H. Dickson, L. M. Downing, E. Gibson, A. Graham, F. Grant, M. Harrison, Jessie L. Ireland, A. S. Jackson, R. McDonnell, E. McGregor, M. E. Mundle, I. S. Nelson, E. P. Newton, F. Thornton, Fred G. Tipping, J. R. Weatherhead, D. Woodcock

Intermediate Department: James William Beer, M. S. Bell, E. Brady, J. I. Ferrier, R. McConnell, Lela H. McKnight, B. Miller, C. Moffatt, Florence Neithercut, Roberta Mary Neithercut, E. Tagg

1927-1928

Elementary Department: Arthur Beech, L. Chrisp, M. H. Dickson, L. Dunlop, E. Gibson, A. Graham, E. M. Grant, F. Grant, M. Harrison, Jessie L. Ireland, A. S. Jackson, R. McDonnell, E. McGregor, M. A. Mundle, I. S. Nelson, F. Thornton, J. R. Weatherhead, D. Woodcock

Junior High Department: M. S. Bell, E. Brady, R. McConnell, Lela H. McKnight, B. Miller, C. Moffatt, Florence Neithercut, Roberta Mary Neithercut, E. Tagg

1928-1929

Elementary Department: Arthur Beech, L. Crisp, M. H. Dickson, L. Downing, L. C. Dunlop, E. Gibson, A. Graham, F. Grant, E. M. Grant, M. Harrison, Jessie L. Ireland, A. S. Jackson, R. McDonnell, E. McGregor, M. E. Mundle, I. S. Nelson, F. Thornton, J. Weatherhead, D. Woodcock

Junior High Department: Miss M. S. Bell, Miss E. Brady, Florence Ada Harris, Miss P. Kyle, Miss R. McConnell (Science), Lela H. McKnight (French), Miss B. Miller (Mathematics), Miss C. Moffat, Miss Florence Neithercut, Miss Roberta Mary Neithercut, Miss E. Tagg, Fred G. Tipping

1929-1930

Elementary Department: Arthur Beech, L. Crisp, M. H. Dickson, L. M. Downing, L. C. Dunlop, F. Fowler, E. Gibson, A. Graham, E. M. Grant, F. Grant, M. Harrison, Jessie L. Ireland, A. S. Jackson, A. M. Lee, R. McDonnell, E. MacGregor, M. E. Mundle, I. S. Nelson, F. Thornton, J. R. Weatherhead

Junior High Department: M. S. Bell, E. Brady, Olive E. Crookshanks, P. Kyle, Paul Cameron Langille, M. Lowell, R. McConnell, L. H. McKnight, B. Miller, C. Moffatt, Florence Neithercut, Roberta Mary Neithercut, E. Tagg, Fred G. Tipping

1930-1931

Elementary Department: Arthur Beech, L. L. Crisp, M. H. Dickson, L. M. Downing, L. C. Dunlop, E. Gibson, A. A. Graham, E. M. Grant, F. Grant, M. Harrison, Jessie L. Ireland, A. S. Jackson, R. McDonnell, E. McGregor, M. E. Mundle, I. S. Nelson, F. Thornton, J. R. Weatherhead

Junior High Department: M. S. Bell, E. Brady, Olive E. Crookshanks, R. McConnell, L. H. McKnight, J. Miller, C. Moffatt, Florence Neithercut, Roberta Mary Neithercut, E. Tagg, Fred G. Tipping, Robert Hugh “Bob” Wellwood

1931-1932

Elementary Department: Arthur Beech, T. M. Coulthard, L. Crisp, E. Doner, L. M. Downing (half-day PM), M. H. Dickson, M. Duncan, L. C. Dunlop, A. A. Graham, E. M. Grant, Jessie L. Ireland, E. Gibson, A. S. Jackson, M. Harrison, R. A. McDonnell, E. McGregor, M. E. Mundle, I. S. Nelson

Junior High Department: M. S. Bell, E. Brady, Olive E. Crookshanks, R. McConnell, L. H. McKnight, C. Moffatt, Florence Neithercut, Roberta Mary Neithercut, E. Tagg, Fred G. Tipping, J. R. Weatherhead, Robert Hugh “Bob” Wellwood

1932-1933

Elementary School: Arthur Beech, T. M. Coulthard, L. Crisp, M. H. Dickson, L. C. Dunlop, L. M. Downing, E. Gibson, A. Graham, F. Grant, E. M. Grant, M. Harrison, Jessie L. Ireland, A. S. Jackson, R. McDonnell, E. McGregor, M. E. Mundle, I. S. Nelson, F. Thornton

Intermediate School: M. G. Bell, E. Brady, Olive E. Crookshanks, R. McConnell, L. H. McKnight, Florence Neithercut, Roberta Mary Neithercut, E. Tagg, Fred G. Tipping, J. R. Weatherhead

1933-1934

Elementary Department: Arthur Beech, T. M. Coulthard, L. Crisp, M. H. Dickson, L. C. Dunlop, E. Gibson, F. Grant, E. M. Grant, A. A. Graham, M. Harrison, Jessie L. Ireland, A. S. Jackson, E. MacGregor, R. McDonnell, M. E. Mundle, I. S. Nelson, F. Thornton

Junior High Department: E. Brady, Arthur Foster Brown, Olive E. Crookshanks, R. McConnell, L. H. McKnight, J. Murray, Florence Neithercut, Roberta Mary Neithercut, E. Tagg, Fred G. Tipping, M. Vant, J. R. Weatherhead

1934-1935

Elementary Department: T. Coulthard, L. Crisp, M. H. Dickson, L. C. Dunlop, E. Gibson, F. Grant, A. A. Graham, E. M. Grant, M. Harrison, Jessie L. Ireland, A. S. Jackson, R. McDonnell, E. McGregor, M. E. Mundle, I. S. Nelson, F. Thornton

Intermediate Department: A. Beech, E. Brady, Arthur Foster Brown, Olive E. Crookshanks, R. McConnell, L. H. McKnight, M. McMurray, J. Menzies, Florence Neithercut, Roberta Mary Neithercut, E. Tagg, Fred G. Tipping, M. Vant, J. R. Weatherhead

1935-1936

Elementary Department: L. L. Crisp, I. M. Coulthard, M. H. Dickson, L. C. Dunlop, E. Gibson, A. A. Graham, F. Grant, H. Harrison, Jessie L. Ireland, A. S. Jackson, R. McDonnell, E. McGregor, M. E. Mundle, I. S. Nelson, F. Thornton

Intermediate Department: A. Beech (manual training), E. Brady, Arthur Foster Brown, Olive E. Crookshanks, R. McConnell, L. H. McKnight, M. McMurray, J. Menzies, Florence Neithercut, Roberta Mary Neithercut, E. Tagg, Fred G. Tipping, M. Vant, J. R. Weatherhead

1936-1937

Elementary Department: L. L. Crisp, T. H. Coulthard, M. H. Dickson, L. C. Dunlop, E. Gibson, A. A. Graham, F. Grant, M. Harrison, Jessie L. Ireland, A. S. Jackson, E. MacGregor, R. McDonnell, M. E. Mundle, I. T. Nelson, F. Thornton

Intermediate Department: A. Beech (manual training), E. Brady, Arthur Foster Brown, Olive E. Crookshanks, R. McConnell, L. H. McKnight, J. Menzies, Florence Neithercut, E. Tagg, Fred G. Tipping, M. Vant

1937-1938

Elementary Department: L. L. Crisp, T. Coulthard, M. H. Dickson, L. C. Dunlop, E. Gibson, A. A. Graham, F. Grant, Jessie L. Ireland, M. B. Jackson, E. MacGregor, R. McDonnell, M. E. Mundle, I. T. Nelson, E. Peterson

Intermediate Department: A. Beech (manual training), E. Brady, Arthur Foster Brown, Olive E. Crookshanks, R. McConnell, L. H. McKnight, J. Menzies, Florence Neithercut, Roberta Mary Neithercut, H. T. Potter (manual training), E. Tagg, Fred G. Tipping, M. Vant

1938-1939

Elementary Department: T. Coulthard, L. L. Crisp, M. H. Dickson, L. C. Dunlop, E. Gibson, A. A. Graham, F. Grant, Jessie L. Ireland, M. MacSwain, R. McDonnell, M. E. Mundle, I. S. Nelson, E. Peterson

Intermediate Department: A. Beech, E. Brady, Arthur Foster Brown, Olive E. Crookshanks, H. Potter, J. H. McKnight, J. Menzies, Roberta Mary Neithercut, E. Tagg, Fred G. Tipping, M. Vant

1939-1940

Elementary Department: A. Beech (manual training), T. Coulthard, M. H. Dickson, L. C. Dunlop, A. A. Graham, E. Gibson, F. Grant, E. Gray (exchange), Jessie L. Ireland, R. McDonnell, M. E. Mundle, I. S. Nelson, E. C. Peterson, H. T. Potter (manual training)

Intermediate Department: E. Brady, Olive E. Crookshanks, E. MacGregor, L. H. McKnight, Roberta Mary Neithercut, E. Tagg, Fred G. Tipping, M. Vant

1940-1941

Elementary Department: I. Black, T. Coulthard, M. H. Dickson, L. C. Dunlop, E. Gibson, A. A. Graham, F. Grant, Jessie L. Ireland, R. McDonnell, M. McSwain, M. E. Mundle, I. T. Nelson, E. C. Peterson

Intermediate Department: E. Brady, M. Clements (home economics), Olive E. Crookshanks, J. M. Howlett, E. MacGregor, F. MacLeod, John Lorne McAllister, L. H. McKnight, Florence Neithercut, Roberta Mary Neithercut, H. T. Potter (industrial arts), R. M. Stephens, E. Tagg, Fred G. Tipping, M. Vant, J. Weatherhead

1941-1942

Elementary Department: I. R. Black, H. Bowley, T. Coulthard, M. H. Dickson, E. Gibson, A. Graham, F. Grant, Jessie L. Ireland, M. MacSwain, M. E. Mundle, I. S. Nelson, E. C. Peterson

Intermediate Department: J. Aitcheson (industrial arts), E. Brady, Olive E. Crookshanks, E. MacGregor, John Lorne McAllister, L. H. McKnight, Florence Neithercut, Roberta Mary Neithercut, H. T. Potter (industrial arts), A. Sproule (home economics), R. M. Stephens, E. Tagg, Fred G. Tipping, M. Vant, J. Weatherhead

1942-1943

Elementary Department: R. I. Black, H. Bowley, T. Coulthard, M. H. Dickson, E. Gibson, A. Graham, F. Grant, Jessie L. Ireland, M. MacSwain, M. E. Mundle, I. S. Nelson, E. C. Peterson

Intermediate Department: J. Aitcheson, E. Brady, J. Buckingham, Olive E. Crookshanks, E. MacGregor, John Lorne McAllister, L. H. McKnight, Florence Neithercut, Roberta Mary Neithercut, A. Sproule, R. M. Stephens, Fred G. Tipping, M. Vant, J. Weatherhead

1943-1944

Elementary Department: H. Bowley, T. Coulthard, M. H. Dickson, L. Ellis, E. Gibson, F. Grant, M. MacSwain, M. E. Mundle, I. S. Nelson, E. C. Peterson

Intermediate Department: E. Brady, J. Buckingham, Olive E. Crookshanks, E. Humphries (home economics), E. MacGregor, John Lorne McAllister, L. H. McKnight, Florence Neithercut, Roberta Mary Neithercut, T. Rolston (industrial arts), R. M. Stephens, Fred G. Tipping, M. Vant, C. E. Ward (industrial arts), J. Weatherhead

1944-1945

Elementary Department: Gladys M. Best, H. Bowley, T. Coulthard, M. H. Dickson, L. B. Ellis, F. Grant, M. MacSwain, N. McLean, M. E. Mundle, I. Nelson, K. O’Neill, E. C. Peterson

Intermediate Department: Henry Charles Avery, J. Buckingham, Olive E. Crookshanks, Dorothy East, E. Humphries (home economics), E. MacGregor, John Lorne McAllister, L. H. McKnight, Florence Neithercut, H. T. Potter (industrial arts), T. Rolston (industrial arts), R. M. Stephens, Fred G. Tipping, M. Vant, J. Weatherhead

1945-1946

Elementary Department: Christabel Blevins, H. Bowley, T. Coulthard, L. B. Ellis, I. Grierson, J. Lazecko, M. E. Lyons, N. MacLean, M. McSwain, M. Miller, M. E. Mundle, I. Nelson, K. O’Neill, E. C. Peterson

Intermediate Department: Henry Charles Avery, D. Chalmers, Olive E. Crookshanks, A. Diamond, D. East, E. MacGregor, P. Martin, L. H. McKnight, Florence Neithercut, Roberta Mary Neithercut, H. Potter, E. Suttie, R. M. Stephens, M. Vant, J. Weatherhead

1946-1947

Elementary Department: A. Block, T. T. Coulthard, E. Hales, M. Karpetz, J. Sinkwich, M. Lyons, I. McCrindle, N. H. MacLean, M. MacSwain, P. Maddess, R. Matheson, M. Miller, M. E. Mundle, I. Nelson, H. Reikowicz, Alice Mary Elizabeth Tweddell

Intermediate Department: Olive E. Crookshanks, D. East, D. G. Fonseca, A. Lawson, E. MacGregor, P. Martin, Thomas George Minshull, Florence Neithercut, Roberta Mary Neithercut, A. Noble, H. T. Potter, R. M. Stephens, E. Suttie, J. Weatherhead

1947-1948

Elementary Department: N. J. Chernac, T. Coulthard, M. E. Doyle, V. Hughes, M. Lyons, H. Maclean, M. MacSwain, P. Maddess, M. Marr, R. Matheson, M. Miller, M. E. Mundle, I. Nelson, Flora N. Sexsmith, J. Sinkwich

Intermediate Department: Olive E. Crookshanks, D. East, D. G. Fonseca, A. H. Lawson, I. McCrindle, Thomas George Minshull, Florence Neithercut, Roberta Mary Neithercut, A. Noble, H. Potter, N. Skremetka, R. M. Stephens, E. Suttie, J. Weatherhead

1948-1949

Elementary Department: Miss P. M. Almey, N. K. Belton, Miss N. Chernac, Miss E. Davis, Miss M. E. Doyle, Mrs. H. Maclean, Miss M. MacSwain, Miss P. Maddess, Miss M. Marr, Miss R. Matheson, Miss E. McAllister, Miss M. Miller, Miss M. E. Mundle, Miss I. Nelson, Anna Phillips, Flora N. Sexsmith, Mrs. J. Sinkwich

Intermediate Department: Olive E. Crookshanks, Miss D. East, D. G. Fonseca, Miss I. McCrindle, Thomas George Minshull, Miss Florence Neithercut, Miss Roberta Mary Neithercut, H. T. Potter, S. Shewchuk, Miss N. Skremetka, Miss R. M. Stephens, Miss E. J. Suttie, Miss J. Weatherhead

1949-1950

Elementary Department: Miss M. Baldwin, N. Belton, Miss J. M. Bull, Miss N. Chernec, Mrs. A. Campbell, Miss J. Dickson, Miss V. Hefford, Miss M. E. Lyons, Mrs. N. Maclean, Miss P. Maddess, Miss M. Marr, Miss M. Miller, Miss M. E. Mundle, Miss I. Nelson, Anna Phillips, Flora N. Sexsmith, Miss M. Wallace, Mrs. A. Wilton

Intermediate Department: Olive E. Crookshanks, Miss D. East, D. Fonseca, Miss C. Johanneson, Miss I. McCrindle, Thomas George Minshull, Miss Florence Neithercut, Miss Roberta Mary Neithercut, H. Potter, Miss E. Redmond, S. Shewchuk, Miss J. Weatherhead

1950-1951

Elementary Department: Miss M. Baldwin, N. Belton, Miss J. M. Bell, Mrs. A. C. Campbell, Miss N. Chernec, Miss J. Dickson, Mrs. V. Frayer, Mrs. M. Maclean, Miss M. Mair, Mrs. V. McFee, Miss M. Miller, Miss M. E. Mundle, Miss J. Nelson, Anna Phillips, Miss A. Rockwell, Flora N. Sexsmith, Miss M. Wallace, Mrs. A. Wilton

Intermediate Department: Mrs. C. Appleby, C. Bell, Olive E. Crookshanks, Miss D. East, W. J. Linton, Miss I. McCrindle, Miss Florence Neithercut, Miss Roberta Mary Neithercut, H. Potter, Miss M. Pottruff, Miss E. Redmond, S. Shewchuk, Miss J. Weatherhead

1951-1952

Elementary Department: Miss M. Baldwin, Miss J. M. Bull, Mrs. A. Campbell, Miss N. Chernec, Miss N. M. Darby, R. Dick, Miss J. Dickson, Mrs. Phyllis Frayer, Mrs. N. Maclean, Miss M. Marr, Mrs. V. McFee, Miss M. Miller, Miss M. E. Mundle, Anna Phillips, Miss A. Rockwell, Flora N. Sexsmith, Miss M. Wallace, Mrs. A. Wilton

Intermediate Department: C. Bell, Olive E. Crookshanks, Miss D. East, Miss D. A. Hall, W. J. Linton, Miss I. McCrindle, Miss Florence Neithercut, H. Potter, Miss M. Pottruff, Miss E. Redmond, S. Shewchuk, Miss J. Weatherhead

1952-1953

?

1953-1954

Elementary Department: Miss M. Baldwin, Mrs. A. Campbell, Miss N. Chernec, Miss J. Dickson, Mrs. L. Ellison, Miss F. Evans, Miss F. Fowler, Miss M. Feltham, Mrs. Phyllis Frayer, Miss E. Kereliuk, Howard J. Loewen, Miss M. Marr, Miss A. W. McIntyre, Miss M. E. Mundle, Anna Phillips, Miss I. Robertson, Mrs. E. Sharkey, Miss O. Stackiw, Miss M. Wallace, Mrs. Wheeler, Mrs. A. Wilton

Intermediate Department: C. Bell, Miss D. East, V. Jacquet, W. J. Linton, Miss I. McCrindle, Miss Florence Neithercut, Miss Roberta Mary Neithercut, Miss M. Pottruff, Mrs. J. Forth, Miss J. Weatherhead

1954-1955

Elementary Department: Miss O. A. Armstrong, Miss M. Baldwin, Miss M. Baldwin, Mrs. A. C. Campbell, Miss N. Chernec, R. L. Donald, Miss J. Dickson, Mrs. L. Ellison, Miss M. Evans, Miss M. H. Feltham, Mrs. Phyllis D. Frayer, Miss E. Kereliuk, Miss M. Marr, Miss A. McIntyre, Miss A. Mowatt, Miss M. E. Mundle, Miss I. Robertson, Mrs. E. Sharkey, Miss O. Stackiw, Mrs. J. Taylor, Miss M. Wallace, Mrs. M. Wheeler, Mrs. A. Wilton

Intermediate Department: C. Bell, J. M. Caldwell, Miss D. East, Mrs. J. Forth, V. Jaquet, Miss I. McCrindle, Miss Florence Neithercut, Miss Roberta Mary Neithercut, Miss M. Pottruff

1955-1956

Elementary Department: Miss O. A. Armstrong, Miss M. Baldwin, Mrs. A. C. Campbell, Miss N. Chernec, Miss J. Dickson, Mrs. L. Ellison, Miss M. Feltham, Mrs. Phyllis D. Frayer, Mrs. J. Gibson, Miss R. Hawcroft, Miss E. Kereliuk, Miss P. Malaher, Miss M. Marr, Miss A. McIntyre, Mrs. E. Roberts, Miss I. Robertson, D. A. Schmidt, Mrs. E. Sharkey, Mrs. J. Taylor, Miss M. Wallace, Mrs. M. Wheeler, Mrs. A. Wilson

Intermediate Department: A. Nazeravich, Mrs. I. Urquhart

1956-1957

Elementary Department: Miss M. Baldwin, Miss F. Bell, Mrs. A. Campbell, Miss N. Chernec, Miss M. Ruth Crosland, J. Elias, Mrs. L. Ellison, Miss M. Feltham, Miss D. Fowler, Mrs. Phyllis D. Frayer, Mrs. J. Gilson, Miss E. Kereliuk, Miss P. Malaher, Miss P. Ono, Mrs. E. Roberts, Miss I. Robertson, D. Schmidt, Mrs. E. Sharkey, Miss J. C. Smyth, Mrs. G. Stewart, Miss M. Wallace, Mrs. M. Wheeler, Mrs. A. Wilton

Intermediate Department: J. Caldwell, V. Jacquet, G. Nicholson, Mrs. E. R. Phillips

1957-1958

Elementary Department: Miss M. Baldwin, Miss F. M. Bell, Miss A. Belyea, Mrs. A. C. Campbell, Miss M. Ruth Crosland, J. Elias, Mrs. L. Ellison, Miss M. Feltham, Miss D. Fowler, Mrs. Phyllis D. Frayer, Mrs. J. Gilson, Mrs. P. Holman, Miss L. Kapetz, Miss E. Kereliuk, Mrs. P. Mackling, Mrs. G. Newcombe, Miss I. Robertson, D. Schmidt, Mrs. E. Sharkey, Mrs. G. Stewart, Miss M. Wallace, Mrs. M. Wheeler, Mrs. A. Wilton

Intermediate Department: J. Caldwell, Mrs. W. Caughlin, V. Jaquet, J. D. Jones, Mrs. E. Olynyk

1958-1959

Elementary Department: Miss M. Baldwin, Miss F. M. Bell, Miss A. Belyea, Mrs. A. C. Campbell, Miss M. Ruth Crosland, Miss M. Feltham, Miss D. Fowler, Mrs. Phyllis D. Frayer, Mrs. E. Gillander, Mrs. P. Holman, Mrs. I. Jackson, Miss L. Kapetz, Miss E. Kereliuk, Miss B. Krucynsky, Mrs. P. Makling, Miss E. Macrovicz, Mrs. G. Newcombe, Miss G. Robinson, D. Schmidt, Mrs. E. Sharkey, Mrs. G. Stewart, Mrs. A. Wilton, Miss S. Zacharias

Intermediate Department: J. Caldwell, Mrs. J. Calleja, Mrs. W. Caughlin, A. Dick, V. Jaquet

1959-1960

Elementary Department: Miss M. Bell, Miss A. Belyea, Mrs. A. C. Campbell, Miss M. Chase, Miss M. Ruth Crosland, Mrs. E. Danytuk, Mrs. M. Feltham, Mrs. D. Fowler, Mrs. Phyllis D. Frayer, Mrs. P. Holman, Miss V. Hughes, Miss L. Kapetz, Miss E. Kereliuk, Miss B. Kruczynski, Mrs. M. Loewen, Mrs. P. Mackling, Miss E. Macrovicz, Mrs. G. Newcombe, G. Olfert, L. Ottenbreit, Miss O. Seraphin, Mrs. G. Stewart, Mrs. P. Swan, Mrs. A. Wilton

Intermediate Department: J. Caldwell, Mrs. W. Caughlin, A. Dick, Mrs. Y. Gusdal, F. Peters

1960-1961

Elementary Department: Mrs. S. Alsop, Miss H. Ashton, Miss S. Baker, Miss F. M. Bell, William J. Birtles, Miss M. Ruth Crosland, Miss B. Daneault, E. Dyck, Miss M. Feltham, Miss D. Fowler, Miss V. Hughes, Mrs. A. Hay, Miss H. Johannesson, Miss E. Kereliuk, Miss B. Krucyznski, Mrs. P. Mackling, Miss E. Macrovicz, W. McKee, Mrs. B. McKillop, Mrs. G. Newcombe, Miss O. Serafin, Mrs. G. Stewart, Miss M. L. Strobbe, Mrs. P. Swan, Mrs. A. Wilton

Intermediate Department: J. Caldwell, Mrs. W. Caughlin, A. Dick, N. Miller, F. Peters

1961-1962

Elementary Department: Mrs. S. Alsop, Beatrice Alice Armstrong, Miss M. Bell, William J. Birtles, Miss D. Chapman, Mrs. S. Coombe, Mrs. F. Eppy, Miss M. Feltham, Miss D. Fowler, A. Gibb, Miss V. Hughes, Miss E. Kereliuk, Mrs. P. Kirk, Miss E. Macrovicz, Mrs. G. Massey, W. McKee, Mrs. B. McKillop, Mrs. G. Newcombe, Mrs. C. Philip, Mrs. G. Sanford, Miss O. Serafin, Miss G. Stewart, Miss M. L. Strobbe, Mrs. P. Swan, Mrs. A. Wilton

Intermediate Department: Mrs. V. Barker, J. Caldwell, Mrs. W. Caughlin, A. Dick, Alfred Z. Zorniak

1962-1963

Beatrice Alice Armstrong, ?

1963-1964

Mrs. D. Alsop, Beatrice Alice Armstrong, Miss E. C. Bardarson, Miss M. Bell, Mrs. M. Brisbin, Miss D. Chapman, Miss V. Clegg, Mrs. D. Cline, Mrs. E. Danyluk, Miss M. Feltham, A. Gibb, Miss C. Hilton, Miss V. Hughes, Miss E. Kereliuk, Mrs. P. Kirk, Miss E. Macrovicz, Mrs.G. Massey, W. McKee, Mrs. B. McKillop, Mrs. G. Newcombe, Mrs. E. Paxton, Miss G. Sanford, W. Schellenberg, Mrs. G. Stewart, Miss M. L. Strobbe, Mrs. K. Toblan, Mrs. A. Wilton

1964-1965

Beatrice Alice Armstrong, ?

1965-1966

Beatrice Alice Armstrong, ?

1966-1967

Mrs. S. Alsop, Beatrice Alice Armstrong, Miss M. Bell, Mrs. M. Brisbin, Mrs. B. J. Caughlin, Mrs. D. Cline, Mrs. M. Edmunds, Mrs. P. Ellerington, Miss M. Feltham, R. Foerster, A. Gibb, Miss G. Hamm, Miss V. Hughes, Miss R. James, Miss J. Johnson, Miss J. Kelpt, Mrs. P. Kirk, Miss I. Lambert, Miss E. Macrovicz, Mrs. B. McKillop, Mrs. G. Newcombe, Mrs. E. Paxton, Miss G. Sanford, Mrs. M. Sparling, Mrs. G. Stewart

1967-1968

Mrs. S. Alsop, Beatrice Alice Armstrong, Mrs. D. Bates, Mrs. M. Brisbin, Mrs. B. Caughlin, Mrs. D. Cline, Mrs. A. Edmunds, Mrs. P. Ellerington, Miss W. Flatt, R. Forester, A. Gibb, Miss G. Hamm, Miss V. Hughes, Mrs. P. Ilavsky, Miss J. Johnson, Mrs. G. Keith, Miss J. Kelm, Miss S. Kominetsky, Miss I. Lambert, Miss E. Macrovicz, Mrs. B. McKillop, Mrs. G. Newcombe, Mrs. E. Paxton, Miss G. Sanford, Mrs. M. Sparling, Miss P. Spratt, Mrs. I. Struthers

1968-1969

Mrs. S. Alsop, Beatrice Alice Armstrong, Miss E. Baerg, Mrs. D. Bates, Mrs. M. Brisbin, Mrs. B. Caughlin, Mrs. D. Cline, Mrs. P. Ellerington, Miss W. Flatt, R. Foerster, A. Gibb, Miss G. Hamm, Mrs. B. Heber, Miss V. Hughes, Miss J. Hull, Mrs. P. Ilavsky, Miss K. Jordan, Mrs. G. Keith, Miss S. Kominetsky, Miss E. Laird, Mrs. D. MacFarlane, Miss E. Macrovicz, Miss M. Marr, R. Marshall, Mrs. B. McKillop, Miss J. Naven, Mrs. E. Paxton, Mrs. L. Smith, Mrs. I. Struthers, Mrs. L. Yakimischak

Photos & Coordinates

Postcard view of Lord Roberts School

Postcard view of Lord Roberts School (no date)
Source: Gordon Goldsborough, 2011-0022

Lord Roberts School

Lord Roberts School (no date)
Source: Winnipeg School Division

Lord Roberts School

Lord Roberts School (no date)
Source: Winnipeg School Division

Lord Roberts School Annex

Lord Roberts School Annex (no date)
Source: Winnipeg School Division

Lord Roberts School, Building 2

Lord Roberts School, Building 2 (no date)
Source: Winnipeg School Division

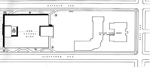
Architectural drawing of the present Lord Roberts School relative to the former buildings

Architectural drawing of the present Lord Roberts School relative to the former buildings (1969)
Source: Winnipeg School Division

Teachers P. Holman (left) and M. Feltham (right) in the auditorium of Lord Roberts School No. 2

Teachers P. Holman (left) and M. Feltham (right) in the auditorium of Lord Roberts School No. 2 (1959)
Source: Gail Singleton

Teacher D. Schmidt in his classroom on the top floor of Lord Roberts School No. 1

Teacher D. Schmidt in his classroom on the top floor of Lord Roberts School No. 1 (1959)
Source: Gail Singleton

Teacher P. Holman in the Assembly room on the top floor of Lord Roberts School No. 1

Teacher P. Holman in the Assembly room on the top floor of Lord Roberts School No. 1 (1959)
Source: Gail Singleton

Lord Roberts School

Lord Roberts School (June 2019)
Source: Jim Fryza

Site Coordinates (lat/long): N49.85937, W97.13895
denoted by symbol on the map above

See also:

MHS Centennial Organization: Lord Roberts School

Memorable Manitobans: William Isaac “Bill” Enns (1923-2006)

Historic Sites of Manitoba: Ellen Douglass School (700 Elgin Avenue, Winnipeg)

Historic Sites of Manitoba: Bukovina School / Lord Roberts School No. 1218 (RM of Stuartburn)

Sources:

1. “Fort Rouge, Winnipeg,” http://en.wikipedia.org/wiki/Fort_Rouge,_Winnipeg

2. “Riverview School,” Winnipeg School Division, history files, January 1989.

3. “Big additions to schools,” Manitoba Free Press, 30 December 1910, page 18.

4. “School board meets,” [cornerstone] Manitoba Free Press, 27 July 1910.

5. Lord Roberts J. H. School. [Yearbook], Winnipeg, Manitoba, 1929.

6. Lord Roberts School. [History], January 1989. Updated 2010. Winnipeg School Division, history files.

7. “School service athletic clubs’ annual concert,” Manitoba Free Press, 12 April 1924.

8. “Youth orchestras,” The Canadian Encyclopedia / The Encyclopedia of Music in Canada. Historica-Dominion, 2011. and Takoski, Leonard T. “A history of the Manitoba Schools’ Orchestra 1923 to 1964.” unpublished MEd thesis, University of Manitoba, 1965.

9. “Daniel McIntyre Trophy 1934-1968,” Andrew M. Rampton, Administrative Assistant, Winnipeg Music Festival, Winnipeg, Manitoba.

10. Lord Roberts School, school history, 1970.

11. “Lord Roberts, pupils honor J. M. Scurfield,” Winnipeg Free Press, 24 June 1955, page 2.

12. “Lord Roberts remembered” by Al Vickery, Winnipeg Free Press, 6 December 1969.

13. Arthur M. Wattis, Lord Roberts School alumnus, 1938-1947.

14. [Schematic] “New eight room school on Beresford Avenue for the Winnipeg Public School Board,” Winnipeg : Department of Education. Annual Report, 1918-19, page 118.

15. Gail Singleton. Lord Roberts School alumna, 1952-1959.

16. William Haywood. Lord Roberts School alumnus, 1946-1949.

17. “Winnipeg schools,” Manitoba Free Press, 14 November 1922.

18. [Photo of Trustee W. W. Jenkins, chairman of the Winnipeg School Board’s Building and Policy committee places the cornerstone for the newly completed Lord Roberts School on Beresford Avenue Friday]. Winnipeg Free Press, 15 November 1969.

19. Official opening of new Lord Roberts School, 21 May 1970, 3:00 PM.

20. Welcome to Lord Roberts Community School 2010-2011, page 8.

21. Kevin Rollason. Family Advocates for Special Needs Students.

22. Recollections of Gail Carruthers, Lord Roberts School alumna, 1923-1933.

“Assignment of teachers for Winnipeg Schools which open on Sept. 15,” Winnipeg Tribune, 1 September 1911, page 9.

“City schools staff assembling in Sept.,” Winnipeg Tribune, 29 August 1912, page 8.

“Opening of the Winnipeg public schools has been set for Monday next,” Winnipeg Tribune, 14 August 1913, pages 1 and 2.

“Here’s your teacher!” Winnipeg Tribune, 21 August 1914, page 6.

“School Board assigns teachers,” Winnipeg Tribune, 20 August 1915, page 9.

“Reduce staff of teachers at high schools Monday,” Winnipeg Tribune, 18 August 1916, pages 1 & 12.

“Boundaries of schools are named,” Winnipeg Evening Tribune, 24 August 1917, page 9.

“Complete plans to open schools Tuesday for 30,000 children,” Winnipeg Evening Tribune, 30 August 1918, page 14.

“Teachers are selected for various grades,” Winnipeg Tribune, 29 August 1919, page 3.

“Winnipeg schools, No. 25—Lord Roberts,” Manitoba Free Press, 14 November 1922, page 9.

“School board tribute to Judge M’Pherson”, Manitoba Free Press, 29 December 1923, page 9.

“Norquay rebuilding stymied; trustees to seek reasons,” Winnipeg Free Press, 21 August 1969, page 38.

“Hundreds say goodbye to old school,” Winnipeg Free Press, 12 December 1969, page 26.

“Tender of the demolition of school buildings,” Winnipeg Free Press, 28 March 1970, page 53.

Obituary [Florence Neithercut], Winnipeg Free Press, 13 October 1976, page 59.

Obituary [Roberta Mary Neithercut], Winnipeg Free Press, 31 March 1984, page 63.

Obituary [Shane Lewis Fox], Winnipeg Free Press, 19 February 2022.

School division half-yearly attendance reports (E 0757), Archives of Manitoba.

Winnipeg School Division: Celebrating One Hundred Fifty Years, 1871-2021 by Winnipeg School Division, 2021.

We thank Bobbi Jo Panciera, Linda Wilson, Leslie Macgillivray (Winnipeg School Division), Gail Carruthers, and Jim Fryza for providing information used here.

This page was prepared by Gail Singleton, Gordon Goldsborough, and Nathan Kramer.

Page revised: 21 April 2026

Download the iOS version of MHS InSiteMHS InSite: Historic Sites in your pocketDownload the Android version of MHS InSite

Historic Sites of Manitoba

This is a collection of historic sites in Manitoba compiled by the Manitoba Historical Society. The information is offered for historical interest only.

Browse lists of:
Museums/Archives | Buildings | Monuments | Cemeteries | Locations | Other

Inclusion in this collection does not confer special status or protection. Official heritage designation may only come from municipal, provincial, or federal governments. Some sites are on private property and permission to visit must be secured from the owner.

Site information is provided by the Manitoba Historical Society as a free public service only for non-commercial purposes.


Send corrections and additions to this page
to the MHS Webmaster at webmaster@mhs.mb.ca.

Search Tips | Suggest an Historic Site | FAQ

Help us keep history alive!