Historic Sites of Manitoba: Segal Bakery Building / Canada Candy and Biscuit Factory / Workers and Farmers Co-Operative Creamery Building (610 Dufferin Avenue, Winnipeg)

Formerly located at the southwest corner of Dufferin Avenue and McGregor Street in Winnipeg, a two-storey brick and Tyndall stone trimmed, Chicago Commercial-style building, measuring 60 feet by 67 feet, was designed by local architect Max Zev Blankstein. It was built in 1915 by day labour as a bakery for owner Nathan Segal at a cost of about $20,000, replacing a preceding building destroyed by fire earlier that year.

In 1920, the building became the factory for the newly formed Canada Candy and Biscuit Company which occuped the building until the early 1930s. In June 1931, the building was purchased by the Workers and Farmers Co-Operative Association (WFCA, renamed People’s Co-operative in 1938) at a cost of $9,000 and was converted into a creamery. The conversion—which cost about $6,000 including equipment and building repairs—was completed at a cost of about $1,000. A two-storey brick garage, measuring 25 feet by 63 feet, was also added that year at a cost of about $5,000. In 1935, repairs and an addition to the building were completed at a cost of about $1,000.

The building has been demolished and the site is now occupied by a different building.

Workers and Farmers Co-Operative Creamery Building

Workers and Farmers Co-Operative Creamery Building (no date)
Source: Association of United Ukrainian Canadians

Workers and Farmers Co-Operative Creamery Building

Workers and Farmers Co-Operative Creamery Building (1931)
Source: Association of United Ukrainian Canadians

Architectural plans for the front elevation of the Segal Bakery Building

Architectural plans for the front elevation of the Segal Bakery Building (1915)
Source: Records Control Branch, City of Winnipeg

Architectural plans for the side elevation of the Segal Bakery Building

Architectural plans for the side elevation of the Segal Bakery Building (1915)
Source: Records Control Branch, City of Winnipeg

Architectural plans for the cross section of the Segal Bakery Building

Architectural plans for the cross section of the Segal Bakery Building (1915)
Source: Records Control Branch, City of Winnipeg

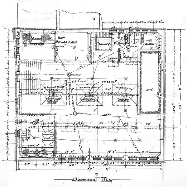
Architectural plans for the basement of the Segal Bakery Building

Architectural plans for the basement of the Segal Bakery Building (1915)
Source: Records Control Branch, City of Winnipeg

Architectural plans for the ground floor of the Segal Bakery Building

Architectural plans for the ground floor of the Segal Bakery Building (1915)
Source: Records Control Branch, City of Winnipeg

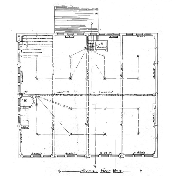
Architectural plans for the second floor of the Segal Bakery Building

Architectural plans for the second floor of the Segal Bakery Building (1915)
Source: Records Control Branch, City of Winnipeg

Site Coordinates (lat/long): N49.91424, W97.15139
denoted by symbol on the map above

See also:

Memorable Manitobans: Max Zev Blankstein (1874-1931)

Memorable Manitobans: Nathan Segal (1876-1933)

Sources:

“Bakery destroyed,” Manitoba Free Press, 23 February 1915, page 14.

City of Winnipeg Building Permit 622/1915, City of Winnipeg Archives.

“New biscuit enterprise has authorized capital of $750,000,” Winnipeg Tribune, 8 October 1920, page 19.

“New building during week totals $25,600,” Winnipeg Tribune, 8 August 1931, page 11.

“Home building for season total 300 dwellings,” Manitoba Free Press, 8 August 1931, page 24.

“Fifteen houses started this week, year’s total 325,” Manitoba Free Press, 22 August 1931, page 3.

“Permits issued,” Winnipeg Tribune, 29 August 1931, page 4.

Ukrainian Labor News, 12 September 1931, page 10.

“Building notes,” Winnipeg Tribune, 8 June 1935, page 4.

“Three dwellings added to number of season’s homes,” Manitoba Free Press, 8 June 1935, page 4.

Winnipeg fire insurance map, #266 May 1956, City of Winnipeg Archives.

The People's Co-op: The Life and Times of a North End Institution by Jim Mochoruk with Nancy Kardash, Fernwood Publishing, 2000.

Henderson’s Winnipeg and Brandon Directories, Henderson Directories Limited, Peel’s Prairie Provinces, University of Alberta Libraries.

We thank Murray Peterson for providing additional information used here.

This page was prepared by Jordan Makichuk.

Page revised: 29 March 2026

Download the iOS version of MHS InSiteMHS InSite: Historic Sites in your pocketDownload the Android version of MHS InSite

Historic Sites of Manitoba

This is a collection of historic sites in Manitoba compiled by the Manitoba Historical Society. The information is offered for historical interest only.

Browse lists of:
Museums/Archives | Buildings | Monuments | Cemeteries | Locations | Other

Inclusion in this collection does not confer special status or protection. Official heritage designation may only come from municipal, provincial, or federal governments. Some sites are on private property and permission to visit must be secured from the owner.

Site information is provided by the Manitoba Historical Society as a free public service only for non-commercial purposes.


Send corrections and additions to this page
to the MHS Webmaster at webmaster@mhs.mb.ca.

Search Tips | Suggest an Historic Site | FAQ

Help us keep history alive!