Manitoba History: Abandoned Manitoba: Winnipeg’s Carnegie Library

by Gordon Goldsborough
Winnipeg

Number 88, Winter 2018

This article was published originally in Manitoba History by the Manitoba Historical Society on the above date. We make this online version available as a free, public service. As an historical document, the article may contain language and views that are no longer in common use and may be culturally sensitive in nature.

Please direct all inquiries to webmaster@mhs.mb.ca.

Help us keep
history alive!

I admit it—I am a bibliophile. As far back as I can remember, I have loved books. I love everything about them: the way they look, feel, smell (I especially love the aroma of a really old book) and, of course, read. So it follows that I also love libraries, as a place where there are lots of books. We tend to assume that libraries have always existed in Manitoba but, in fact, the City of Winnipeg was not served with a public library for the first 32 years of its existence. It was 1905 when the now-vacant Carnegie Library on William Avenue became Manitoba’s first public library. For the next seventy years, it was the “flagship”—a centre of humanity’s collected knowledge—in a network of libraries in Winnipeg.

An historical postcard of the Carnegie Library on Winnipeg’s William Avenue. In the background at right, across Ellen Street from the library, was Victoria School and its twin, Albert School, sat farther back.

An historical postcard of the Carnegie Library on Winnipeg’s William Avenue. In the background at right, across Ellen Street from the library, was Victoria School and its twin, Albert School, sat farther back.
Source: Gordon Goldsborough, 2018-0043

In truth, the library that opened in 1905 was not the first library in Manitoba. A Red River Library of books donated by explorer Peter Fidler and retired fur traders existed in the Red River Settlement between 1848 and 1871. The first lending library in Winnipeg was operated by the Historical and Scientific Society of Manitoba (today’s Manitoba Historical Society). As of 1888, the collection was housed in the City Hall on Main Street, managed by a joint committee of the HSSM and the City. A juvenile section, opened in 1899, caused a marked increase in book circulation. Dedicated library space was needed. In 1901, provincial librarian John P. Robertson wrote to American philanthropist Andrew Carnegie to request a grant for the construction of a new library building.

Scottish-born Carnegie made a fortune in the steel industry and, later in his life, became passionately engaged in public philanthropy. He is reported to have said that “the man who dies rich, dies disgraced” and he lived by this mantra, endowing a wide range of institutions. (Bill Gates is a modern embodiment of Carnegie’s philosophy.) Most notably, Carnegie is commemorated by Carnegie Hall in New York City and Carnegie Mellon University in Pittsburgh. Among his other works were public libraries throughout the English-speaking world, in the United States, Britain, Ireland, Australia, New Zealand, South Africa, and Canada. In total, Carnegie paid for the construction of some 3,000 libraries worldwide and 125 libraries across Canada. Winnipeg was just one of 142 cities that Carnegie approved for a library grant in 1901. Other Canadian cities approved that year were Collingwood, Cornwall, Guelph, Ottawa, St. Catharines, Sault Ste. Marie, Stratford, and Windsor in Ontario, and Vancouver and Victoria in British Columbia.

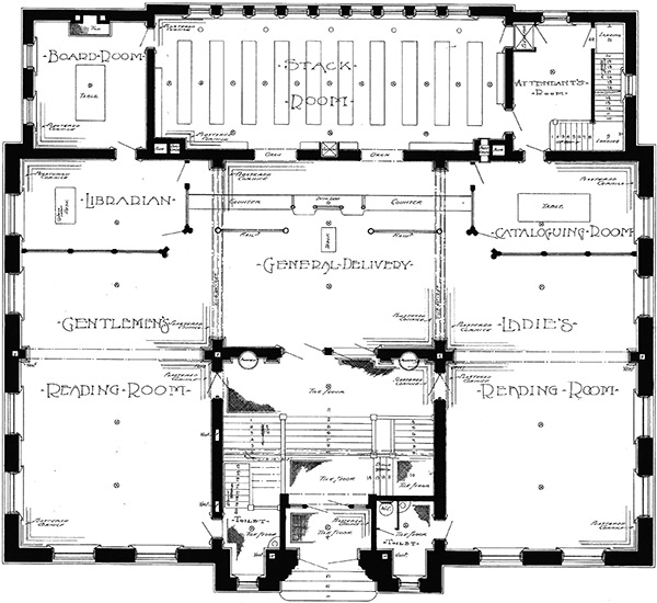
Architectural plan for the main floor of Winnipeg’s new Carnegie Library, circa 1904.
Source: City of Winnipeg Archives

Carnegie’s offer of $75,000 was contingent on the city government approving an annual allocation of one-tenth of this sum for operating costs. An additional $25,000 from city coffers would be used to acquire and landscape the grounds. Designed by local architect Samuel Hooper, construction of the two-storey building of limestone veneer over a brick core took from 1903 to 1905. It was (and is) an impressive building. Walking up steps leading into the building, you entered a small lobby, then through a second set of doors into another lobby, then up a set of six marble steps. From here, you could take a second staircase to the second floor or ahead into the main floor, where there was a wide desk staffed by librarians. Behind them, through a pair of arched doorways, were the stacks—closely positioned shelves jammed with some 30,000 books transferred from the old City Hall library. The stacks were “closed” in the sense that you could not simply browse the contents of the shelves in search of a particular book. Instead, you asked a librarian to retrieve the book from the stacks then, depending on your gender, you turned left to enter the Gentlemen’s Reading Room or right for an equally-sized Ladies’ Reading Room. There, gentlemen (but, it appears, not ladies) were offered a selection of current newspapers and magazines from across Canada, the United States, and Great Britain. On the second floor were book stacks with 30,000 more books (and a small elevator to transport books between floors), an impressive skylight to flood the area with natural sunlight, as well as public rooms with oak bookcases, tables, and chairs. The plastered white walls with natural oak woodwork would later feature a collection of artwork. An assembly room on the second floor was used for regular Saturday afternoon lectures. Down in the basement were mechanical systems for heating—but not cooling—the building, meeting rooms (used through the years, for example, by the Manitoba Camera Club and the Beta Sigma Phi Business Girls Sorority), and storage space (more on this later). The grounds surrounding the building, under the control of the Winnipeg Parks Board, were grassed and enclosed with a cast iron fence.

As finishing touches were put to the library, a search commenced to find a male librarian to lead it. (There was no consideration whatsoever of the possibility that a female librarian might be able to do the job.) In due course, James H. McCarthy was selected (by a 6-5 vote of council) as the city’s first Chief Librarian. Ontario-born, McCarthy had come to Manitoba in 1888 and taught school at Portage la Prairie then moved to Winnipeg where he was the Principal of Carlton School on Carlton Street (1893-1899)—the present-day site of the True North Square. He sold life insurance and served on the city council (1902-1903) before finding another Principalship at Pinkham School (1904-1905) on Pacific Avenue.

The new Carnegie Library was opened officially by the Governor General in October 1905. Under McCarthy’s administration, the first children’s room of any library in Canada was opened, in January 1907, followed a few months later by a reference library that catered to those seeking specific facts and figures—in modern parlance, an early version of Google. Expansion of the library network began less than five years after the main Carnegie Library was built, with the opening of “branch and extension libraries” in public spaces, including a pharmacy on Grosvenor Avenue at Stafford Street, in the Stella Avenue branch of the All Peoples Mission, at the YWCA, General Hospital, and several local schools (Clifton, Strathcona, Lord Selkirk, Cecil Rhodes, and King Edward). McCarthy also oversaw the construction of an addition on the south side of the original building, in 1908, using a second $39,000 grant provided by the Carnegie Corporation. This was not the end of Carnegie’s largesse toward Winnipeg. In 1913, the city council approached him for $70,000 to construct two libraries away from the city’s core: St.John’s Library in the North End and the Cornish Library near the Misericordia Hospital. Constructed in 1914, these one-storey buildings, modest compared to the main library, opened to the public in 1915. Unlike their predecessor, the newer Carnegie libraries in Winnipeg are in active use today. By the way, although Winnipeg received three Carnegie libraries, only one other Manitoba community received one; a $10,000 grant in January 1908 went to Selkirk. In 1917, Carnegie discontinued his grant program for libraries.

The library’s collection grew from an estimated 35,000 volumes in 1911 to a peak of 140,000 by 1918 before declining to around 125,000 through the 1920s then declining again to about 82,000 in the 1930s. From the 1940s onward, however, it grew consistently, reaching 405,000 volumes by 1971. The collection diversified in 1947 with the addition of a lending library of phonograph records, adding to an existing film collection and a growing number of foreign-language books. Starting initially with 700 records, mostly of classical music, they were rented out at ten cents per record per week. Statistics on the library’s total annual circulation—the number of volumes lent out—show an interesting trend over time. After a short-lived spike during the First World War, circulation settled down at around 800,000 volumes per year and remained more or less constant right up to the early 1950s. It climbed dramatically throughout the 1950s, and especially after 1956. I combed Annual Reports prepared by the Chief Librarian to seek an explanation for this apparently abrupt increase. There, in the 1953 Annual Report, I found it. For several years through the 1940s, the Librarian had complained that the location of the main library, while centrally located when it was built, was no longer convenient for a large proportion of Winnipeggers. The city council was not responsive to requests for new library branches in some of the city’s far-flung new neighbourhoods. However, in 1953, it approved the construction of a Bookmobile. A 24-foot heated trailer towed by a one-ton panel truck, containing 2,500 books, the Bookmobile roamed the city, parking for periods of 2.5 to 4 hours in service station or community centre parking lots. In its first couple of months of operation in late 1953, the Bookmobile circulated 8,400 books, about four times as many as the Elmwood branch during the same period. By Autumn 1957, a second Bookmobile—this one a larger vehicle holding 4,000 books—was added to meet the growing demand, managed along with four libraries in public schools by a new “Extension Department” under librarian Nettie Siemens. The Chief Librarian would later report:

“The two Bookmobiles last year had a circulation of 146,968 and have been almost embarrassingly popular especially with the children who line up to get in them at almost every stop.”

By 1958, the Bookmobile fleet circulated 277,875 books—more than the main Carnegie Library or any of its bricks-and-mortar branches. Despite these impressive gains in readership, librarians fretted that their circulation was threatened by new technology, most notably television that was becoming more common in Winnipeg households through the 1950s. In his 1955 Annual Report, Chief Librarian Archibald Jamieson reported that “There has been a decrease in the circulation of books in almost every department of the Library. The general opinion of the branch and department heads is that this is caused partly at least by the effect of TV.” The following year, he started to come around to a view that “1956 may be remembered as the year the Library recovered from television,” in that TV could satisfy the demand for lighter reading but might stimulate interest in “more serious” books in paper form.

The annual book circulation from Winnipeg’s libraries between 1910 and 1971 increased rapidly in the first few years then was mostly static through the 1920s, 1930s, and 1940s, rising again through the 1950s as the Bookmobiles made books available to many more Winnipeggers. Was the drop in the early 1960s due to the impact of television?
Source: Millennium Library, Local History Room

The main Carnegie Library closed in 1977 when the Centennial Library (today’s Millennium Library) was opened. It reopened in June 1978 as the “William Avenue Branch” of the library network (remaining open until 1995) and as home for a newly established Archives and Control Branch. Intended to store inactive municipal documents such as council minutes, tax rolls, building plans and permits, and a wealth of other materials going back to 1873, as well as “various community artifacts and historic documents,” the archives arose, in effect, from a storage role that the library had served for a long time. In his 1950 Annual Report, Archibald Jamieson noted that, during flood-fighting that year, “a valuable collection of old records consisting of journals kept by Hudson’s Bay Company factors at Fort William was unearthed and handed over to the Provincial Library.” Some 580 volumes of bound newspapers that had been “kept in the basement of the Library for many years” were moved to safety in the Civic Auditorium.

Children at the reference desk in the Carnegie Library, April 1962.
Source: University of Manitoba Archives & Special Collections, Tribune Collection, UMASC Trib 18-3339-20

In addition to serving as a warehouse for dormant records, and destruction of files deemed redundant, Archives staff made microfilm and microfiche copies of tax rolls and other single-copy originals. By the mid-1990s, however, the building was said to be “full” and not well organized. A consultant concluded that:

The 380 William facility [has] neither the equipment nor the staff to preserve or restore historical records. Similarly, there is no capacity to conduct research, develop displays and publications, and conduct presentations.

In response, the city appointed Marc Lemoine of the City Clerk’s Office as its first formal City Records Manager and Archivist. A few months later, historian Dr. James Allum was hired as his assistant. Together with other staff, they began to turn the City of Winnipeg Archives into a facility that could support the municipal government and also be a valuable resource to historians and the general public.

Librarian Nettie Siemens (who after managing the library’s wildly popular Bookmobile program, would become Chief Librarian, the first woman to hold the job, from 1975 to 1976) and Harry Easton (her predecessor as Chief Librarian, from 1959 to 1975) in the Carnegie Library, February 1962.
Source: University of Manitoba Archives & Special Collections, Tribune Collection, UMASC Trib 18-3339-29

Appraised for insurance purposes at $4.1 million, the City of Winnipeg Archives was considered by professional archivists to have among the finest collections of municipal records in Canada. Unfortunately, the records were stored under less-than-ideal conditions in the nearly century-old Carnegie Library. Insect and rodent pests, widely erratic air temperature and humidity, and a leaky roof combined to make it a terrible environment for preserving precious old documents. In 2013, a major renovation to turn the building into a world-class archival facility, including a temperature- and humidity-controlled storage vault, was begun. These were the first major renovations since the building was underpinned with piles in 1948, and a mezzanine floor was installed and wiring was replaced between 1959 and 1963. Unfortunately, the transformation was not completed. The building sustained extensive water damage when a hole in the roof was left uncovered by contractors during two major rainstorms in June 2013. Soggy archival collections were hurriedly moved into “an obscure building in an industrial park” and the building has been standing empty ever since. The roof was repaired and I have been assured the building envelope is now intact but the interior requires considerable repairs. None of the work to create a satisfactory archival space—estimated to cost $9.2 million—was done. The city council seems reluctant to commit those funds. I have seen plans for a project that would see the building restored, at reduced cost to city coffers, but its status is unknown. Meanwhile, the old building sits ... and waits ... in limbo.

Interior of the former Carnegie Library when it was host to the disheveled-looking City of Winnipeg Archives, May 2006.
Source: Gordon Goldsborough

Numerous people have fond memories of trips to the Winnipeg public library. My wife and her sister remember taking out books with their parents and, if they were especially good, enjoying a chocolate bar from a vending machine in the library’s lobby. Growing up in the faraway suburb of Charleswood, I did not patronize the Carnegie Library until high school, when my history teacher assigned a research project on the Second World War. I went to the library in search of old newspapers, published during the war, that were archived there. Reading those newspapers as though they were today’s news made the war “come alive” for me, and I think this single experience, more than any other, sparked my life-long interest in history. In 2000, one of my most profound experiences using archival materials occurred when James Allum let me roam among piles of large, bound volumes stored on the second floor. I remember my feeling of awe as I turned each yellowed old page containing hundreds of handwritten entries for the tax bills assessed on particular properties around the city. I also remember how filthy my hands got from touching those old volumes because dust and debris had been showering down on them from the deteriorating ceiling for years. Later, those volumes were covered by large plastic sheets to protect them from further damage, clearly showing how poor the conditions were at that time for the protection of these invaluable records.

Recently, I was asked for a Top-10 list of books that I have known and loved. I realized in compiling my list that several entries were not physical books at all. They were books that I had read in electronic format on my iPad. What this says, I think, is that the format of reading material is changing but the practice of reading is alive and thriving. Winnipeg’s public libraries now include electronic books among their collections. So I am doubtful of dire predictions that the Internet will eliminate books, just as librarians of the 1950s need not have worried that television would do likewise. Inevitably, future libraries will look very different from Winnipeg’s Carnegie Library of 1905. I am glad to have this surviving reminder of how far we book-lovers have come in just over a century.

Notes

The City of Winnipeg Archives, residing in an industrial warehouse since the 2013 flood, was a wonderful source of information about the Carnegie Library—and numerous other subjects—and I am grateful to archivist Sarah Ramsden for her enthusiastic help. Louis-Philippe Bujold and the other librarians at the flagship Millennium Library (successor to the Carnegie Library) have assembled an impressive collection of materials in their Local History Room for which I am most appreciative. Lewis Stubbs found excellent photos in the Tribune Collection at the University of Manitoba Archives & Special Collections. Shout-outs go to postcard collector Rob McInnes for sharing his voluminous collection that includes several views of the library, and MLA James Allum for discussing his experiences as a city archivist. Sisters Maria and Halina Zbigniewicz talked with me about fond childhood memories of trips to the Carnegie Library.

1. “Completion of new structure,” Winnipeg Tribune, 17 February 1905, p. 2.

2. Carnegie Grants for Library Buildings, 1890-1917 by Durand R. Miller, Carnegie Corporation of New York, 1943.

3. Chief Librarian’s Report, 1944–1964, Millennium Library, Local History Room.

4. “Winnipeg Public Library (former Carnegie Library), 380 William Avenue,” City of Winnipeg Historical Buildings Committee Report, April 1984.

5. “From dusty papers to archival treasures: Canadian municipal archives, the City of Winnipeg Archives, and the records of Winnipeg City Council, 1874–1971” by Sara Hemingway-Conway, MA thesis, University of Manitoba, 2000.

6. City of Winnipeg Records Committee Annual Reports, 2002–2016, City of Winnipeg Archives.

7. “Whither the City Archives?” by Tom Nesmith, Heritage Winnipeg Blog, 27 April 2016. http://heritagewinnipeg.blogspot.ca/2016/04/do-you-know-your-winnipeg-whither-city.html

We thank Clara Bachmann for assistance in preparing the online version of this article.

We thank S. Goldsborough for assistance in preparing the online version of this article.

Page revised: 28 May 2023